meta name="p:domain_verify" content="e78416ed2a6a3255481b881

Jan 31, 2014

Pandawas Villas Indonesia Design Front Cover

Client : Arvind Mohindra ( CEO, PT. Haier Telecom Indonesia)
Architect : Bali Land Enterprise + Partner
Principal  : I Ketut Dirgantara
Contractor : Gapura Bali
Lighting : Aura Lighting
Landscape : John Pettigrew Design in Nature
Main Program : Villas and Bar
Location : Tegalalang - Bali
Floor Area : 1200 sqm
Site Area : 6000 sqm
Year : 2009



Jan 14, 2014

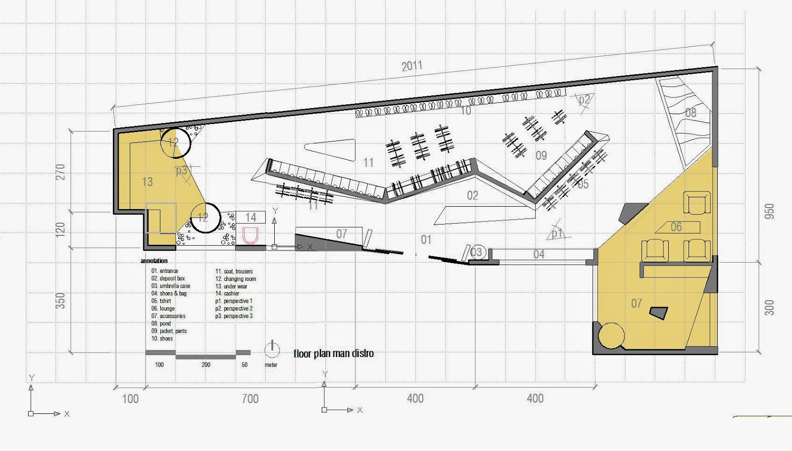
Male Distro Paskal | Bandung


©dirgadirgent
Project Data

Project: Male Distro Paskal
Designer: Yuni Utami, Dirgantara
Location: Pasir Kaliki Bandung  - Indonesia
Appointment: July 2010
Construction Start: Pending
Area: 190 sqm
3d Impression: Yuni Utami & Dirgantara
Contractor : PADI Yunus

Design

©dirgadirgent